CASA SINGOLA CON DEPOSITO E FIENILE A TORRESELLE


195.000 €
330 m2
4 Camere
2 Bagni
2 Box / 4 Posti auto
CODICE AGENTE 201, CELLULARE 3381302004 - CODICE RIFERIMENTO ANNUNCIOare-ven-casa-10111:
ISOLA VICENTINA – LOCALITÀ TORRESELLE – VIA BALZARIN N. 4
Complesso immobiliare residenziale con abitazione indipendente, deposito, fienile, corte esclusiva e terreno di proprietà.
In località Torreselle, una delle zone collinari più tranquille e suggestive del Comune di Isola Vicentina, proponiamo in vendita un interessante complesso immobiliare a destinazione residenziale, costituito da abitazione sviluppata su tre livelli, con annesso deposito agricolo, fienile, cantina e terreno pertinenziale di circa 1.350 mq, il tutto ubicato in Via Balzarin n. 4.
La proprietà è situata in posizione dominante e panoramica, raggiungibile tramite strada privata, e gode di una ottima esposizione solare. Pur essendo affiancata ad altre due abitazioni sul retro, si presenta completamente indipendente grazie alla sua conformazione e all’ampia area di pertinenza esclusiva che garantisce privacy e tranquillità.
Distribuzione degli spazi
L’abitazione principale si sviluppa su tre livelli fuori terra, per una superficie complessiva di circa 106 mq per piano, e si compone come segue:
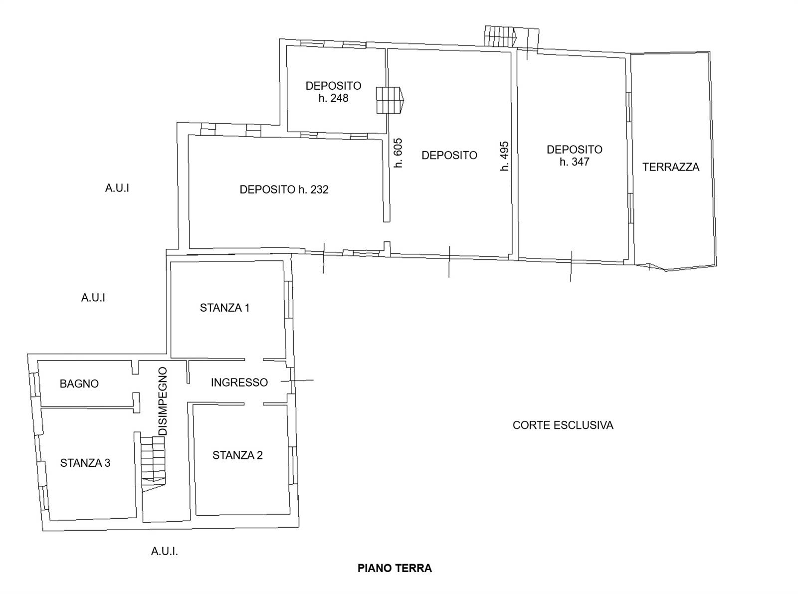
Piano Terra
• Ampio ingresso/disimpegno centrale
• Bagno finestrato
• Tre grandi stanze multifunzionali, da destinare in base alle proprie esigenze (zona giorno, studio, camere, ecc.)
Piano Primo
• Disimpegno
• Tre ulteriori stanze di generose dimensioni
• Secondo bagno di ampia metratura
• Poggiolo con vista aperta sulle colline circostanti e sul campanile di Torreselle
Piano Secondo (Sottotetto)
• Soffitta al grezzo, finestrata, con tetto a due falde in andamento (altezza interna max 2,40 m – min 0,75 m), ideale come deposito, locale hobby o vano tecnico.
Corpi accessori
L’immobile comprende anche un deposito agricolo/magazzino di circa 150 mq al piano terra, con sovrastante fienile al primo piano di ulteriori 60 mq circa. Completano la proprietà:
• Una cantina al piano seminterrato
• Un terrazzo panoramico dove trascorrere momenti conviviali all’aperto godendo del silenzio e della vista
• Ampia corte esclusiva e terreno a verde di proprietà
Caratteristiche tecniche e potenzialità
L’edificio è stato realizzato negli anni ’70. La struttura portante è in ottime condizioni statiche: non presenta crepe né cedimenti, risultando quindi un’ottima base per eventuali lavori di ammodernamento e/o di ridistribuzione degli ambienti interni.
Le finiture interne sono quelle originali dell’epoca e, pur essendo datate, permettono un utilizzo immediato dell’immobile a seconda delle necessità. L’impianto di riscaldamento è attualmente alimentato con stufe a legna e pertanto va sicuramente aggiornato per un ottimale confort abitativo.
Questa soluzione offre ampie potenzialità di sviluppo e personalizzazione, sia per chi desidera realizzare un’abitazione principale immersa nella natura, sia per chi cerca una seconda casa in un contesto collinare facilmente accessibile e a soli 10 minuti di auto dalla piazza di Isola Vicentina.
Un luogo dove il tempo rallenta, i panorami si aprono sull’orizzonte, e ogni stagione si vive all’aperto.
Ideale per chi ama vivere immerso nel verde e godere delle passeggiate sui sentieri collinari che partono direttamente da casa.
Qui la tranquillità è sicuramente parte integrante del vivere quotidiano!
Il prezzo richiesto è di Euro 195.000,00. Contattaci ora per fissare una visita!
Per info e visite: CODICE AGENTE 201, CELLULARE 3381302004 - CODICE RIFERIMENTO ANNUNCIO are-ven-casa-10111, mail: arena@loftstudioimmobiliare.com
L'agenzia immobiliare LOFT si trova a VICENZA in CORSO S.S. FELICE E FORTUNATO n. 128 e si compone di un gruppo di professionisti immobiliari che si contraddistinguono in competenza e disponibilità a garantire l’adeguata assistenza al cliente in ogni fase della trattativa, sia in acquisto che in affitto. Siamo a disposizione di ogni cliente per valutare compravendite e locazioni sia abitative che commerciali, il tutto con l'obiettivo che la trattativa sia svolta nella maggior TRASPARENZA AFFIDABILITÁ e TRANQUILLITÁ possibili.
Caratteristiche principali
Codice
are-ven-casa-10111
Città
Isola Vicentina
Categoria
Casa singola
Locali
7
Camere
4
Bagni
2
Mq
330
Box
2
Posti auto
4
Balconi
1
Terrazzi
1
Classe energetica
G
198,98 kWh/m²a
Stato Immobile
Abitabile
Grado
Economico
Posizione
Collina
Panorama
Vista Monti
Orientamento
Nord Ovest Sud Est
Lati Liberi
3
Giardino
Privato
Tipo Soggiorno
Doppio
Tipo Cucina
Abitabile
Riscaldamento
No
Tipo Impianto
Altro
Fonte Energetica
Legna
Acqua Calda
Autonoma
Raffrescamento
No
Infissi
Legno
Serramenti
Mediocre
Persiana
Tapparella PVC
Pavim. Giorno
Ceramica
Pavim. Notte
Ceramica
Pavim. Cucina
Ceramica
Pavim. Bagno
Gres Porcellanato
Accesso Disabili
No
Accesso interno disabili
Parziale
Isolamento
Non presente
Isolamento termico
Nessuno
Isolamento acustico
Nessuno
Accessori
Armadio a Muro, Camino, Lavanderia, Passaggio Automobilistico, Passaggio Pedonale, Ripostiglio, Stufa a Pellet, Tavolini Esterni
Mappa
Via Balzarin 4, Isola Vicentina (VI)
Planimetrie
Planimetria Piano Terra
Planimetria Piano Primo
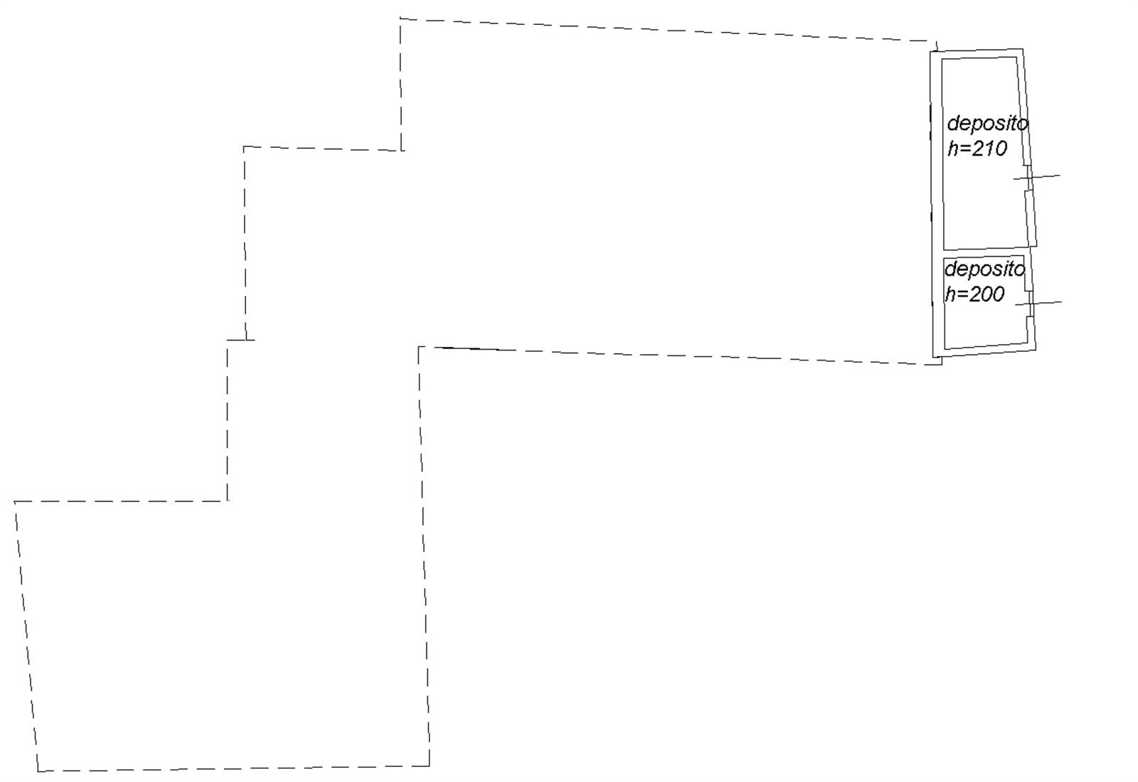
Planimetria Piano Secondo
Planimetria Piano Interrato
Richiedi informazioni
Invia
Cookie preference