Luminosa mansarda bicamere in contesto quadrifamiliare


150.000 €
124,6 m2
2 Camere
1 Bagni
1 Posti auto
CODICE AGENTE 201, CELLULARE 3381302004 - CODICE RIFERIMENTO ANNUNCIO are-ven-bic-13011: Vicenza – Via Leonardo da Vinci
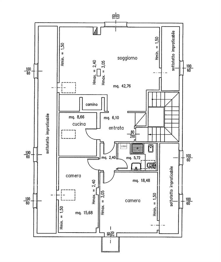
All’interno di un contesto riservato e ordinato, composto da sole quattro unità abitative e con ridotte spese condominiali, proponiamo in vendita appartamento mansardato di circa 125 mq commerciali, posto al terzo ed ultimo piano.
Una soluzione che si distingue per luminosità, atmosfera e carattere, mantenuta con grande attenzione nel tempo e sempre oggetto di cura e manutenzione costante.
L’ingresso è separato e accoglie immediatamente con spazi ben definiti.
Da qui si accede a un ampio soggiorno, vero fulcro della casa, valorizzato da un importante camino che conferisce calore e personalità all’ambiente.
Il cucinotto è separato, funzionale e ben organizzato.
Un corridoio ben distribuito conduce alla zona notte, composta da due ampie camere, entrambe molto luminose.
Elemento distintivo dell’abitazione è il tetto con andamento a vista, con rivestimenti in legno presenti sia sulle falde che in alcune pareti, che donano agli ambienti un’atmosfera accogliente e autentica, tipica delle mansarde ben concepite.
La luminosità è garantita dalla presenza di numerosi Velux distribuiti in tutti gli ambienti, che assicurano luce naturale durante l’intero arco della giornata.
Ulteriore valore aggiunto è la presenza, lungo tutto il perimetro della parte bassa dell’abitazione, di un sottotetto impraticabile, non utilizzabile come superficie abitativa ma sfruttabile come ampia zona ripostiglio, ideale per deposito e contenimento.
L’immobile è dotato di caldaia a condensazione recentemente sostituita e si presenta in buono stato manutentivo, pronto per essere abitato, lasciando eventualmente spazio a personalizzazioni nel tempo. Ogni ambiente è dotato di climatizzazione in pompa di calore, per garantire comfort in ogni stagione.
Completa la proprietà un posto auto coperto da pompeiana, collocato all’interno della corte comune.
📍 Posizione: l’appartamento si trova all’ingresso della zona industriale Est, adiacente alla pista ciclabile che permette in pochi minuti di raggiungere Viale della Pace, in posizione strategica per collegamenti e servizi, grazie alla vicinanza al Centro Commerciale Palladio, a Torri di Quartesolo e alla zona Est della città.
✨ Plus: nello stesso stabile è disponibile anche l’appartamento al piano secondo, soluzione ideale per chi è alla ricerca di due unità nello stesso contesto, perfetta per nuclei familiari allargati, genitori e figli, o per chi desidera mantenere una vicinanza abitativa con spazi indipendenti.
✔️ Contesto piccolo e ben tenuto
✔️ Ottima luminosità grazie ai Velux
✔️ Camino e tetto in andamento
✔️ Ampie zone ripostiglio accessorie
✔️ Posto auto coperto con pompeiana
✔️ Classe energetica C
✔️ Tempi di liberazione da concordare
Una proposta interessante per chi cerca una casa con carattere, luce e atmosfera, spazi ben proporzionati e funzionalità reale, all’interno di un contesto riservato e senza gestione condominiale.
📌 Prezzo: Euro 150.000,00
📞 Contattaci subito per fissare un incontro e scoprire di persona tutto il valore di questa proposta.
Per info e visite: CODICE AGENTE 201, CELLULARE 3381302004 - CODICE RIFERIMENTO ANNUNCIO are-ven-bic-13011
mail: arena@loftstudioimmobiliare.com
L’agenzia immobiliare LOFT Studio Immobiliare ha sede a Vicenza, in Corso Santi Felice e Fortunato n. 128, ed è composta da un team di professionisti del settore immobiliare che opera con elevati standard di competenza, serietà e professionalità.
L’agenzia garantisce un’assistenza qualificata e continuativa al cliente in tutte le fasi della trattativa, sia nell’ambito delle compravendite che delle locazioni, residenziali e commerciali, curando ogni aspetto tecnico, contrattuale e operativo. L’obiettivo è quello di accompagnare il cliente verso scelte consapevoli, assicurando che ogni operazione si svolga nel rispetto dei principi di trasparenza, affidabilità e tranquillità.
Caratteristiche principali
Codice
are-ven-bic-13011
Città
Vicenza
Categoria
Appartamento
Locali
4
Camere
2
Bagni
1
Mq
124,6
Posti auto
1
Balconi
1
Mq Balcone
1,43
Classe energetica
C
92,49 kWh/m²a
Stato Immobile
Buono
Grado
Medio
Posizione
Periferia
Panorama
Vista Aperta
Orientamento
Nord Ovest Sud Est
Lati Liberi
4
Giardino
Comune
Tipo Soggiorno
Doppio
Tipo Cucina
Cucinotto
Riscaldamento
Autonomo
Tipo Riscaldam.
Caldaia a Condensazione
Tipo Impianto
Radiatori
Fonte Energetica
Metano
Acqua Calda
Autonoma
Raffrescamento
Split
Infissi
PVC Doppio Vetro
Serramenti
Buono
Persiana
Persiana PVC
Pavim. Giorno
Ceramica
Pavim. Notte
Ceramica
Pavim. Cucina
Ceramica
Pavim. Bagno
Gres Porcellanato
Accesso Disabili
No
Accesso interno disabili
Non accessibile
VMC
No
Accessori
Aria Condizionata, Armadio a Muro, Camino, Passaggio Automobilistico, Passaggio Pedonale, Porta Blindata, Ripostiglio, Tavolini Esterni
Mappa
Viale Leonardo Da Vinci 8, Vicenza (VI)
Planimetrie
Planimetria appartamento
Richiedi informazioni
Invia
Cookie preference