ATTICO CON TERRAZZO PANORAMICO IN VIALE MILANO


199.000 €
136 m2
2 Camere
2 Bagni
1 Posti auto
CODICE AGENTE 201, CELLULARE 3381302004 - CODICE RIFERIMENTO ANNUNCIO are-ven-att-29101:
Al sesto e ultimo piano di un edificio completamente riqualificato, proponiamo un attico di 136 mq che unisce comfort moderno, efficienza energetica e viste panoramiche sulla città.
Le murature perimetrali con cappotto nanotecnologico, il rinforzo strutturale antisismico e i pannelli fotovoltaici garantiscono una qualità costruttiva superiore, mentre i serramenti di ultima generazione assicurano un eccellente isolamento termico e acustico.
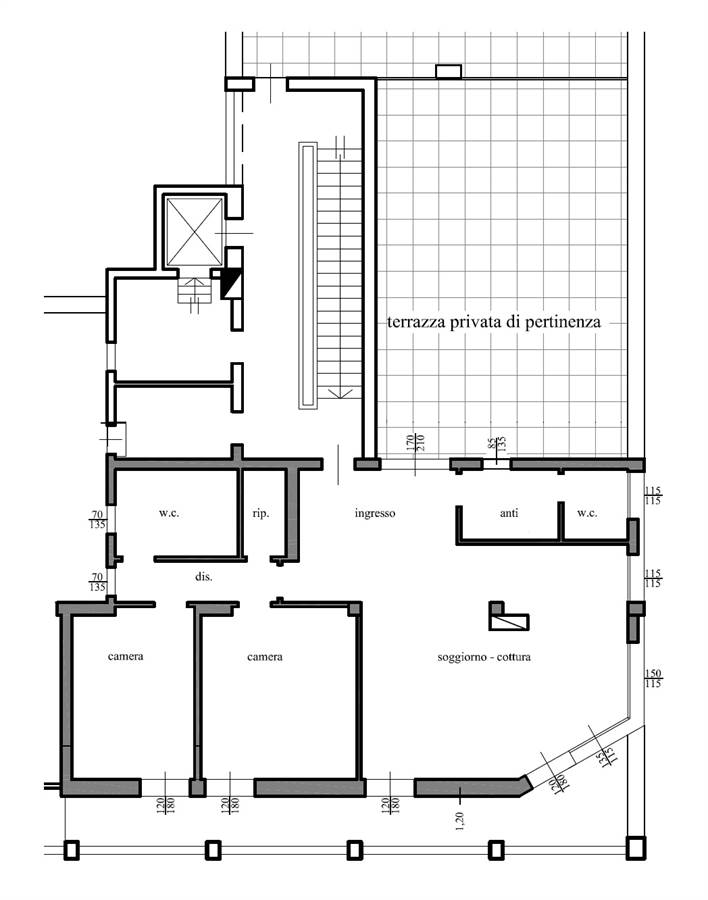
L’ingresso si apre su un’ampia zona living open-space con cucina e soggiorno impreziositi da una stufa a pellet che scalda l’ambiente con un tocco di charme.
La zona notte è composta da due camere, due cabine armadio e due bagni finestrati.
Ma il vero valore aggiunto sono le due terrazze abitabili, entrambe dotate di impianto di irrigazione automatica:
la prima, di 54 mq, affacciata a nord-ovest, regala tramonti incantevoli e vista sulle montagne, ideale per pranzi, feste o semplicemente momenti di relax;
la seconda, di 27 mq, orientata a est, offre la luce del mattino e un’altra prospettiva suggestiva sui tetti della città.
Pavimenti in listoni di legno, rivestimenti in sassi del Piave, impianto di condizionamento autonomo e riscaldamento con contacalorie individuali completano una dotazione tecnica di livello.
Completano la proprietà posto auto scoperto e cantina con spazio per biciclette.
Un’abitazione elegante e funzionale, perfetta per chi desidera vivere a due passi dal centro storico senza rinunciare a privacy, luce e panorami aperti.
Le opportunità con questo equilibrio tra prezzo, qualità e posizione sono sempre più rare.
📞 Contattaci subito per fissare una visita e scoprire di persona tutto il valore di questa proposta.
Prezzo Euro 199.000.
Per info e visite: CODICE AGENTE 201, CELLULARE 3381302004 - CODICE RIFERIMENTO ANNUNCIO are-ven-att-29101
mail: arena@loftstudioimmobiliare.com
L'agenzia immobiliare LOFT si trova a VICENZA in CORSO S.S.FELICE E FORTUNATO n. 128 e si compone di un gruppo di professionisti immobiliari che si contraddistinguono in competenza e disponibilità a garantire l’adeguata assistenza al cliente in ogni fase della trattativa, sia in acquisto che in affitto. Siamo a disposizione di ogni cliente per valutare compravendite e locazioni sia abitative che commerciali, il tutto con l'obiettivo che la trattativa sia svolta nella maggior TRASPARENZA AFFIDABILITÁ e TRANQUILLITÁ possibili.
Caratteristiche principali
Codice
are-ven-att-29101
Città
Vicenza
Categoria
Attico
Locali
3
Camere
2
Bagni
2
Mq
136
Posti auto
1
Terrazzi
2
mq Terrazzo
79,45
Piano
6
Classe energetica
D
133,02 kWh/m²a
Stato Immobile
Buono
Grado
Medio
Posizione
Centro
Panorama
Vista Aperta
Orientamento
Nord Ovest Sud Est
Lati Liberi
3
Tipo Soggiorno
Soggiorno
Tipo Cucina
Angolo Cottura
Riscaldamento
Conta Calorie
Tipo Riscaldam.
Pompa di Calore
Tipo Impianto
Radiatori
Fonte Energetica
Fotovoltaico
Acqua Calda
Autonoma
Raffrescamento
Split
Infissi
PVC Doppio Vetro
Serramenti
Ottimo
Persiana
Persiana Metallo
Pavim. Giorno
Personalizzato
Pavim. Notte
Parquet
Pavim. Cucina
Cotto
Pavim. Bagno
Gres Porcellanato
Accessori
Aria Condizionata, Armadio a Muro, Ascensore, Cancello Elettrico, Fibra Ottica, Impianto Fotovoltaico, Impianto Satellitare, Lavanderia, Passaggio Automobilistico, Passaggio Pedonale, Porta Blindata, Portineria/Custode, Ripostiglio, Stufa a Pellet, Tavolini Esterni, Video Citofono
Mappa
Viale Milano 14, Vicenza (VI)
Planimetrie
Planimetria appartamento
Planimetria cantina
Richiedi informazioni
Invia
Cookie preference